
HD 유형 유럽 호이스트 전기 단일 대들보 오버 헤드 크레인
유럽 단일 대들보 오버 헤드 크레인은 고급 기술과 아름다운 디자인으로 FEM 및 DIN 표준에 따라 엄격하게 설계 및 제작 된 소형 리프팅 기계입니다. 일반적인 유형 및 서스펜션 형식으로 나누어 유럽 표준 전기 호이스트의 사용을 지원, 워크샵 및 창고 재료 취급, 대형 부품 정밀 조립 및 기타 장소에 적합합니다.
HD 유형 유럽 호이스트 전기 단일 대들보 오버 헤드 크레인
간단한 설명:
유럽 단일 대들보 오버 헤드 크레인은 고급 기술과 아름다운 디자인으로 FEM 및 DIN 표준에 따라 엄격하게 설계 및 제작 된 소형 리프팅 기계입니다. 일반적인 유형 및 서스펜션 형식으로 나누어 유럽 표준 전기 호이스트의 사용을 지원, 워크샵 및 창고 재료 취급, 대형 부품 정밀 조립 및 기타 장소에 적합합니다.

그것은 널리 기계 제조, 야금, 석유, petrifaction, 포트, 철도, 민간 항공, 식품, 제지, 건설, 전자 산업 워크샵, 창고 및 기타 자재 취급 상황, esp에서 사용할 수 있습니다. 정밀한 위치 결정을 필요로하는 재료 취급, 대형 부품 정밀 조립 상황에 적용됩니다.

상세한 이미지 :

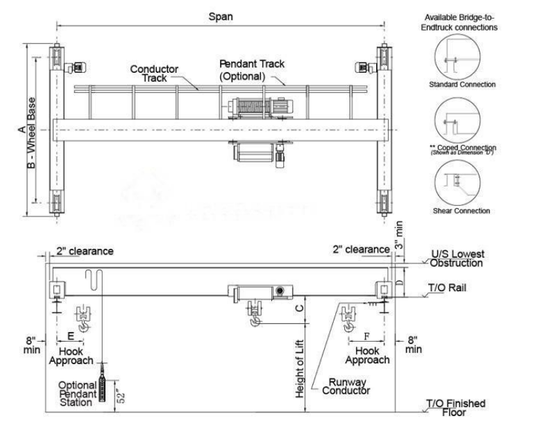
스케치 드로잉 :

기술 파라미터 :
스팬 | 엠 | 7.5 | 10.5 | 13.5 | 16.5 | 19.5 | 22.5 | 25.5 |
생산 능력 | 티 | 1 ~ 12.5t | ||||||
총 무게 | 킬로그램 | 1781 ~ 12086 | ||||||
트롤리 중량 | 킬로그램 | 405 ~ 740 | ||||||
맥스. 휠로드 | kn | 13.5 ~ 90.94 | ||||||
여행 레일 | P24 ~ P43 | |||||||
리프팅 속도 | m / 분 | 0.8 / 5 | 0.8 / 5 | 0.8 / 5 | 0.8 / 5 | 0.8 / 5 | 0.8 / 5 | 0.8 / 5 |
리프팅 높이 | 엠 | ≥ 6 | ≥ 6 | ≥ 6 | ≥ 6 | ≥ 6 | ≥ 6 | ≥ 6 |
총 모터 출력 | kw | 4.31 | 4.31 | 4.31 | 4.31 | 4.67 | 4.67 | 4.67 |
크레인 속도 | m / 분 | 3-30 | 3-30 | 3-30 | 3-30 | 3-30 | 3-30 | 3-30 |
트롤리 속도 | m / 분 | 2-20 | 2-20 | 2-20 | 2-20 | 2-20 | 2-20 | 2-20 |
근무 기간 | M5 / A5 | |||||||


English
Melayu
Italiano
Bai Miaowen
Latviešu
українська
Kreyòl Ayisyen
Việt Nam
România limbi
slovenščina
suomi
Polski





